Röschdaalskoppel Hamburg
Trenknerpark Trenknerweg Hamburg
Wiedestraße Wiedepark Wedel
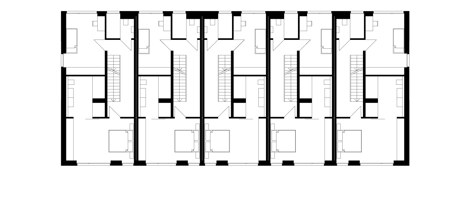
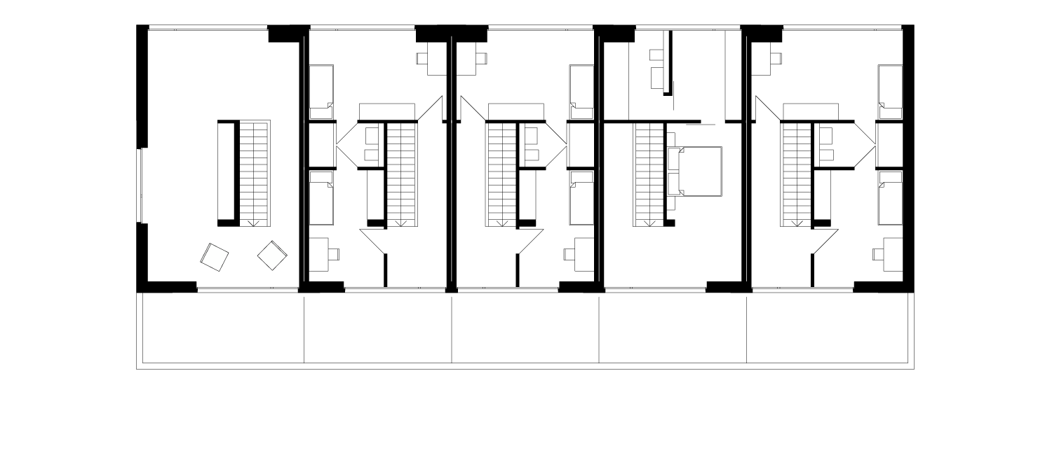
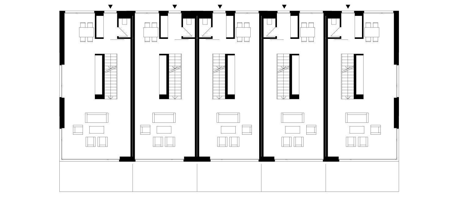
Wiedestraße Wiedepark Haus 5 6 Wedel